Porte sezionali industriali
Le porte sezionali industriali sono la soluzione ideale per la chiusura degli spazzi industriali,anche in situazioni particolari di costruzione. Le dimensioni personalizate e l'utilizzo degli accessori speciali permettono di applicare tecniche diverse di azionamento, secondo le condizioni di traffico e di utilizzo.
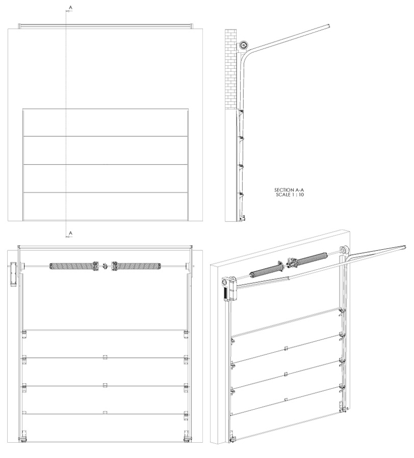
Le porte sezionali industriali Torna si caratterizano per:
- Le più innovative tecniche di fabbricazione permettono un'integrazione perfetta nel ambiente ( immobile)
- Sistema di scorrimento standard SL
- Sistema di scorrimento LHF (Low Headroom Front) quando il montaggio delle molle si fa sulla trave sovrastante la “luce” entrata
- sistema di scorrimento LHR (Low Headroom Rear) per il montaggio delle molle alla fine delle guide di scorrimento a foffitto
- Sistema di scorrimento FTR (Follow The Roof) quando le guide seguono l' inclinazione del tetto
- Sistema di scorrimento HL ( High Lift) quando si desidera che le guide vengano rialzate rispetto alla dimensione luce
- Sistema di scorrimento HL- FTR( High Lift și Follow The Roof) quando le guide vengono rialzzate e poi seguono il tetto
- Sistema di scorrimento FVL ( Full Vertical) quando la porta si alza completamente verticale
- Ottimo isolamento termico realizzato con
- pannelli sandwich spessore 40 mm
- guarnizioni laterali
- guarnizione doppia inferiore
- Confort e sicurezza
- Azionamento con telecomando con codice di sicurezza (anti clonazione)
- Dispositivi di sicurezza contro la rottura delle molle
- Pannelli anti ”pizzicamento“ dita
- Dispositivi di sicurezza contro I tentativi di effrazione
- Sistema di sicurezza “safety edge”
- Dispositivi di sicurezza con fotocellule
- Possibilità di aprire la porta anche manualmente nel caso di mancanza di corrente elettrica
- garanzia per 15 000cicli / 25 000 cicli
- Ampia scelta di colori ed accessori
- 40 tipi di pannelli di diversi colori e strutture
- Possibilita di reallizzazione di porte in pannelli vetrati.
- Possibilita di installare porta pedonale con soglia ridotta e ammortizzatore
Modalità di funzionamento
Sistemi di scorrimento
Colori pannelli
Sono disponibili piu di 20 colori e imitazioni tonalità legno



